MITX-6140
来自ARM Wiki
文件:MITX-6140 概览.JPG
MITX-6140 概览
文件:MITX-6140 正面.JPG
MITX-6140 正面
产品简介
- MITX-6140(以下简称6140)是华北工控面向视觉、医疗、轨道交通、工业智能制造、自助终端设备研发的一款高可靠性工业主板,是基于Intel® Whiskey Lake-U平台,支持8/9th BGA1528处理器(I7-8565U/I5-8265U/I3-8145U/celeron4205u等等), 1条单通道SO-DIMM内存插槽,支持DDRIV 2400MT/s((PC4-2400),支持2/4/8/16/32GB内存,支持VGA + HDMI + LVDS显示接口,支持6x COM,2x LAN,10 x USB(6x USB2.0、4x USB3.0),支持2x SATA3.0、1x JFP、1x PS/2,8x GPIO,支持Line out + MIC in+5W的功放;扩展丰富:1x PCIe 16X Slots(PCIEX4信号) 、1x LPC扩展、2 x MiniPCIE。
- MITX-6140 提供HDMI+VGA+LVDS,亦支持6个串口、10个USB
- CPU:Intel® Whiskey Lake-U 支持8/9th BGA1528处理器
- 内存:支持1条单通道SO-DIMM内存插槽,支持DDRIV 2400MT/s((PC4-2400),支持2/4/8/16/32GB内存
- 显示接口:HDMI+VGA+LVDS,支持独立三显示;HDMI:1个标准的HDMI接口, 最大支持分辨率4Kx2K @ 24 Hz;VGA:1个标准的DB15 VGA接口,最大支持分辨率1920x1200 @ 60 Hz;LVDS:1个LVDS接口,支持双8 BIT,最大支持分辨率 1920x1080 @ 60 Hz
- Ethernet:网络控制器LAN1采用Intel I219网口芯片支持AMT, 标准的RJ45网络接口;网络控制器LAN2采用Intel I211网口芯片, 标准的RJ45网络接口,速率:10/100/1000Mbps
- SuperI/O:F81866A
- 图像控制:采用Intel Whiskey Lake-U processor集成Intel® UHD Graphics 620
- 存储:提供2个标准7pin SATA座子,支持SATA3.0, 1个mSATA;(NOTE Pentium Celeron Processors NOT SUPPORT SATA2)
- 音频:采用ALC662音频控制芯片;支持Line out + MIC in + 5W的功放
- BIOS:AMI EFI
- COM:提供6个COM,(其中COM2支持RS232/RS422/485模式,其它串口仅支持RS232模式)
- USB:提供10个USB接口,其中6个标准的USB2.0、4个标准的USB3.0;(NOTE Pentium Celeron Processors NOT SUPPORT PORT8,9)
- PCIE:1个PCIe 16X Slots(PCIEX4信号) 、2 个 MiniPCIE(其中一个支持Msata,一个支持3/4G/WIFI模块)
- KM:1个PS/2 KB/MS标准接口
- JFP:1个2.0mm 2x5PIN JFP接口
- GPIO:8个GPIO接口
- FAN:1个CPU FAN
- LPC:1个LPC总线扩展接口。配合(AFC-346C,AFC-345C,AFC-342C扩展串口使用。)
- Temperature:Work 0℃~60℃, Storage -40~85℃
- Humidity:5%~95%,无凝露
- PCB Size:170mmX170mm
- Power Supply:DC +12V 电源供电
- 看门狗:支持硬件复位功能
- Other:Watchdog
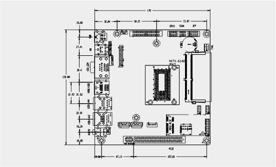
接口布局和尺寸
接口概览
机械尺寸
接口引脚定义
- SATA接口(SATA1,SATA2,JSATAPWR)
- 串口(JCOM1,COM2,COM3-6)
- 显示接口(VGA,HDMI,LVDS,JLVDS,LVDS_BKLT)
- USB/LAN接口(USB12,USB34_LAN2,USB56_LAN1,USB78,USB910)
- 键盘鼠标接口(KM)
- 可编程输入输出口(JGPIO)
- 电源接口(PWR1,PWR2)
- 风扇接口(CPU_FAN)
- 功放喇叭接口(JAMP)
- LPC总线接口(JLPC)
- 音频接口(AUDIO)
- 屏幕亮度调节按键接口
- 前面板接口(JFP)
- 内存插槽(SO-DIMM)
- 扩展接口(PCIE_X1,MINI_ PCIE1,MINI_ PCIE2)